| ----------------------------------------------------------------------------------------------- |
|
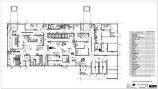
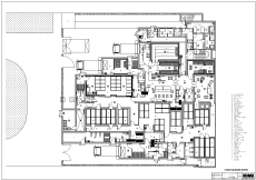
Daraboló-feldolgozó – 2022.
Kiskapacitású daraboló és húsfeldolgozó üzem, háromszintes elrendezésben, a meglévő épület adottságaihoz igazodva.
Darabolt húsok és általános húsipari termékek előállítására.
|
|
 |
----------------------------------------------------------------------------------------------- |
|
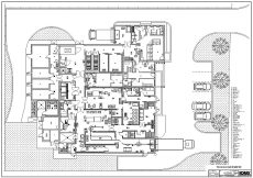
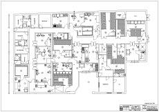
Marha daraboló-feldolgozó – 2020.
30 marhanegyed/nap daraboló és 1500 hamburgerpogácsa/nap teljesítményű feldolgozó üzem.
A darabolt húsok érlelve és hűtve kerülnek kiszállításra.
A hamburgerpogácsák gyorsfagyasztás után jellemzően fagyottan lesznek értékesítve.
A tervek szerint kizárólag webes felületen értékesítenek, termo-dobozos kiszállítással.
|
|
 |
----------------------------------------------------------------------------------------------- |
|
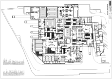
Marha daraboló-feldolgozó – 2017.
40 marhanegyed/nap daraboló és 500 kg/nap teljesítményű feldolgozó üzem.
A darabolt húsok hűtve kerülnek kiszállításra.
Érlelt szalámik, szárított és pácolt marhahúsok (jerky, pastrami) előállítására.
|
|
 |
----------------------------------------------------------------------------------------------- |
|
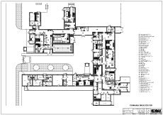
Kráter Hús Kft. – Celldömölk – 2015.
30 félsertés/nap daraboló és 3,16 tonna/hét teljesítményű feldolgozó üzem.
A darabolt húsok hűtve kerülnek kiszállításra.
Általános termékszerkezetű késztermék előállításra.
|
|
 |
----------------------------------------------------------------------------------------------- |
|
Vörös-Hús Kft. – Esztergom – 2011.
40 félsertés/hét daraboló és 3 tonna/hét teljesítményű feldolgozó üzem.
A darabolt húsok hűtve kerülnek kiszállításra.
Általános termékszerkezetű késztermék előállításra.
Önálló húsbolttal egybeépítve. |
|
 |
----------------------------------------------------------------------------------------------- |
|
Cervus Gast Kft. – Békésszentandrás – 2009.
Sertésdaraboló üzem zsírolvasztóval kiegészítve.
A darabolt húsok hűtve vagy fagyasztva kerülnek kiszállításra.
A Szarvas Ép-Terv Kft. előzetes tervei alapján készítettem ezt a kiviteli bázistervet.
www.cervusgast.hu
|
|
 |
| ----------------------------------------------------------------------------------------------- |
|
Vén Família Bt. – Kalocsa – 2008.
40 félsertés/nap daraboló és 1,5 tonna/nap teljesítményű feldolgozó üzem.
A darabolt húsok hűtve vagy fagyasztva kerülnek kiszállításra.
Általános termékszerkezetű késztermék előállításra.
Önálló húsbolttal egybeépítve.
|
|
 |
| ----------------------------------------------------------------------------------------------- |
|
Pikker Húsüzem Kft. – Bóly – 2008.
800 félsertés/nap daraboló és 10 tonna/nap teljesítményű feldolgozó üzem.
Az eredetileg vágó-feldolgozó üzemből, alapos átalakítás után, lényeges bővítésekkel lett kialakítva. 1000 félsertés, 40 marhanegyed befogadására alkalmas testhűtőkkel és 30 tonna befogadóképességű fagyos tárolóval. |
|
 |
| ----------------------------------------------------------------------------------------------- |
|
Béke Agrárszövetkezet
Hajdúböszörmény – 2007.
3 tonna/hét daraboló és 2 tonna/hét teljesítményű feldolgozó üzem.
A meglévő kisüzemi vágó-feldolgozó üzem épületének átalakításával került kialakításra.
A darabolt húsok hűtve kerülnek kiadásra. A szokásos termékféleségek előállítására és zsírolvasztásra.
(Sajnos nem került megvalósításra.)
|
|
 |
| ----------------------------------------------------------------------------------------------- |
|
Kálmánházi Húsüzem Kft. – 2007.
100 félsertés/nap, 20 marhanegyed/nap daraboló és 4,5 tonna/nap teljesítményű feldolgozó üzem.
A meglévő épület átalakításával és bővítésével került kialakításra.
A darabolt húsok hűtve (esetenként fagyasztva) kerülnek kiadásra. A szokásos termékféleségek előállítására és csomagolására. |
|
 |
| ----------------------------------------------------------------------------------------------- |
|
Liver Kft. – Gödöllő – 2005.
1200 liba- vagy kacsatest/hét daraboló, 600 kg/hét májszeletelő és 300 kg/hét májpástétom előállítására alkalmas üzem.
Egy meglévő kisüzem került átalakításra, az EU előírásainak figyelembe vételével.
(Sajnos nem lett megépítve.)
www.liver.hu
|
|
 |
| ----------------------------------------------------------------------------------------------- |
|
Cseh és Társa Kft. – Kaposvár – 2003.
50 félsertés/nap, 12 marhanegyed/nap daraboló és 2 tonna/nap teljesítményű feldolgozó üzem.
A meglévő üzem lett átalakítva, már az EU-s feltételek teljesítésére.
A darabolt húsok hűtve kerülnek kiadásra. A késztermékek darabolt-pácolt húsok és füstöltkolbász, amit az előírásoknak megfelelően lehet csomagolni is.
|
|
 |
| ----------------------------------------------------------------------------------------------- |
|
Zollai Baromfi – Kóka – 1994.
1,5 tonna/nap kapacitású baromfifeldolgozó és daraboló üzem. Hűtött, tisztított baromfiból készült termékekre. Különösen a prémium kategóriás libamáj és pácolt-füstölt liba és pulyka termékeket előállítására.
Konzerv és egyéb termék gyártására is alkalmas. Zsírolvasztóval együtt.
Esetenként exkluzív csomagolásban, különösen európai és távol-keleti piacokra.
www.zollai.hu
|
|
 |
| ---------------------------------------------------------------------------------------------- |