| ----------------------------------------------------------------------------------------------- |
|
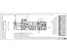
Kisvágóhíd darabolóval – 2020.
30 sertés/nap vagy 5 szarvasmarha/nap kapacitású kisvágóhíd, darabolóval.
Meglévő tervek erőteljes áttervezése nyomán épült meg és üzemel ez a kisvágóhíd.
|
|
 |
| ----------------------------------------------------------------------------------------------- |
|
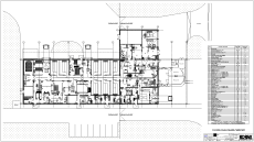
Kiskapacitású vágó-daraboló – 2019.
20 marha/nap vagy 30 sertés/nap kisvágóhíd darabolóval.
3 tonna/nap darabolási kapacitással.
Hűtött és fagyasztott termékek előállítására.
A darabolt húsok egyedi vákuumos csomagolása mellett kartonos gyűjtőcsomagolásuk is biztosított.
Többszintes, állványos mélyhőfokú tárolóval a fagyasztott termékek tárolására.
|
|
 |
| ----------------------------------------------------------------------------------------------- |
|
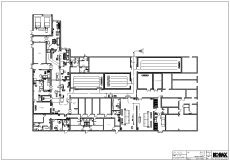
Lindner SRL. – Románia – 2017.
5 marha/nap vagy 20 sertés/nap kisvágóhíd darabolóval.
Hűtött és fagyasztott termékek előállítására.
|
|
 |
| ----------------------------------------------------------------------------------------------- |
|
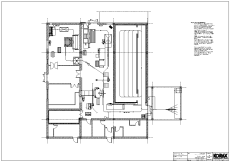
Kisvágóhíd darabolóval – 2016.
10 marha/nap és/vagy 20 sertés/nap kisvágóhíd.
Marhahús-érlelőkkel.
Darabolóval, előkészített hús előállítási lehetőséggel. Egyedi és kartonos csomagolóval.
Hűtött és fagyasztott termékek előállítására.
|
|
 |
| ----------------------------------------------------------------------------------------------- |
|
Laosz – 2009.
5 marha/nap és/vagy 30 sertés/nap kisvágóhíd.
Közösített bontóvonallal, időben eltolt vágási lehetőséggel.
ÁTK-Herceghalom megbízásából készített terv.
Időközben kiegészült egy daraboló üzemrésszel is az eredetileg csak vágónak készült üzem.
|
|
 |
| ----------------------------------------------------------------------------------------------- |
|
Hanuco SRL. – Drochia (Moldova) – 2008.
60 marha/nap és 50 sertés/nap kapacitású vágóhíd.
Közösített bontóvonallal, időben eltolt vágási lehetőséggel.
A meglévő eredeti vágóhíd helyiségeinek felhasználásával és a szükséges bővítésekkel került kialakításra.
A vágóvonal mellett egy daraboló üzemrész is kialakításra került.
|
|
 |
| ----------------------------------------------------------------------------------------------- |
|
Coldprodcoop – Orhei (Moldova) – 2008.
70 marha/nap és 50 sertés/nap kapacitású vágóhíd.
Közösített bontóvonallal, időben eltolt vágási lehetőséggel.
A meglévő eredeti vágóhíd helyiségeinek felhasználásával került kialakításra.
|
|
 |
| ----------------------------------------------------------------------------------------------- |
|
Armikom SRL. - Sepsiszentgyörgy - 2008.
400 sertés/nap és 60 marha/nap kapacitású vágóhíd, komplett béltisztító üzemrésszel.
|
|
 |
| ----------------------------------------------------------------------------------------------- |
|
Lac-Hús Kft. – Hajdúnánás – 2007.
A 2002-ben kialakított sertés- és marhavágó üzem lett kiegészítve egy csontozószalagos darabolóval, a hozzá kapcsolódó húscsomagolóval és darált hús előállítóval, valamint két hűtőbővítéssel és hulladéktároló bővítéssel is.
A meglévő helyiségek könnyűszerkezetes, szendvicspanel burkolatú helyiségekkel lettek kiegészítve a szükséges mértékig.
www.lachus.hu
|
|
 |
| ----------------------------------------------------------------------------------------------- |
|
Pannonhús-Vágóhíd Kft. – Tata – 2006.
300 sertés/nap és 30 marha/nap vágóval és 50 félsertés/nap, 12 marhanegyed/nap kapacitású darabolóval rendelkező üzem.
Korszerű konvejoros bontóvonalakkal, gyorselőhűtőkkel és pneumatikus hulladékmozgatással. A daraboló üzemrész főleg a levágott TF-sertések darabolására.
EU-s minősítéssel.
(Sajnos nem épült meg.)
|
|
 |
| ----------------------------------------------------------------------------------------------- |
|
Imki-Food Kft. – Biharnagybajom – 2004.
150 sertés/nap és 15 marha/nap kapacitású üzemrész.
A korszerűtlen sertés és marhavágó vonalak teljes átalakítása és felújítása.
Korszerű konvejoros bontóvonalakkal, pneumatikus hulladékmozgatással.
EU-s minősítéssel.
www.imki-food
|
|
 |
| ----------------------------------------------------------------------------------------------- |
|
Lac-Hús Kft. – Hajdúnánás – 2002.
400 sertés/nap és 40 marha/nap kapacitású üzem.
Egy hagyományos kisüzem több lépcsőben lett átalakítva a meglévő területek és a szükséges hozzáépítések felhasználásával.
Korszerű konvejoros bontóvonalakkal, pneumatikus hulladékmozgatással.
EU-s minősítéssel
www.lachus.hu
|
|
 |
| ----------------------------------------------------------------------------------------------- |
|
Ponderosa SRL. - Marosvásárhely - 1998.
70 sertés/nap és 5 marha/nap kapacitású kisüzem.
Egy meglévő épület bővítésével és átalakí-tásával készült ez a terv. A vágóvonalak mellett egy kisebb daraboló is kialakításra került.
(Sajnos ez az üzem nem lett megépítve.)
|
|
 |
| ----------------------------------------------------------------------------------------------- |
|
Pásztor Hús Kft. – Eger – 1998.
50...100 sertés/nap és 5...10 marha/nap kapacitású kisüzem.
Ebben az időben kezdték el korszerűsíteni a kisüzemeket. Ennek egy jó példája ez az üzem, amit azóta már több alkalommal továbbfejlesztettek.
Függesztve történik már az összes munkaművelet, de az anyagmozgatás még kézzel történik a kiépített magaspálya rendszeren.
|
|
 |
| ----------------------------------------------------------------------------------------------- |