| ----------------------------------------------------------------------------------------------- |
|
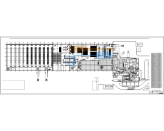
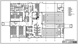
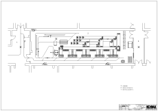
Baromfi-daraboló – 2021.
4 tonna/nap kapacitású baromfi-daraboló üzem.
Az üzemben kizárólag baromfi alapanyagok kerülnek feldolgozásra.
Elsődlegesen liba és kacsa szárnytövet, valamint csirkemellet és csirkecombot csontoznak.
A kicsontozott húst 10 kg-os gyűjtőcsomagokban fagyasztás után értékesítik.
|
|
 |
| ----------------------------------------------------------------------------------------------- |
|
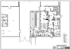
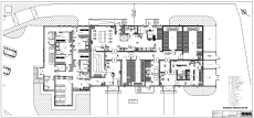
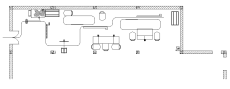
Baromfi-daraboló – 2019.
9 tonna/nap kapacitású baromfi-daraboló üzem.
Az üzemben kizárólag baromfi alapanyagok kerülnek feldolgozásra.
Elsődlegesen liba szárnytövet, libacombot és csirkecombot csontoznak, illetve kockáznak.
Csirke mellfiléből csíkokat és natúr saslikot állítanak elő.
|
|
 |
| ----------------------------------------------------------------------------------------------- |
|
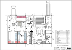
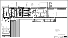
Félsertés daraboló – 2018.
250 félsertés/óra kapacitású daraboló üzem.
Félsertés darabolásra, a darabolt hús egyedi és kartonos csomagolására. Darált hús előállítással.
Hűtött és fagyasztott termékek előállításra.
Sokkolóval és mélyhőfokú késztermék tárolókkal. Magaspályás félsertés hűtőkkel, konvejoros gyorselőhűtővel.
|
|
 |
| ----------------------------------------------------------------------------------------------- |
|
BAZ megye – 2014.
200 félsertés/nap daraboló üzem.
Félsertés darabolásra, a darabol thús egyedi és kartonos csomagolására. Hűtött és fagyasztott termékek előállításra.
Sokkolóval és mélyhőfokú késztermék tárolókkal.
|
|
 |
| -----------------------------------------------------------------------------------------------
|
|
Eximflor Kft. – Tahitótfalu – 2013.
4,5 tonna/nap liba szárnytő, liba- és csirkecomb, valamint csirkemell csontozó és kockázó/csíkozó üzem.
Hűtött és/vagy fagyasztott termékek exportra való gyártására.
Sokkolóval és mélyhőfokú késztermék tárolással.
|
|
 |
| -----------------------------------------------------------------------------------------------
|
|
VBMP 26 Kft. – Komoró – 2007.
200 marhanegyed/nap vagy 2000 csirke/nap darabolására alkalmas üzemrész. A szükséges alapanyag hűtők, daraboló és csomagoló helyiségekkel, illetve sokkoló fagyasztóval.
Maglévő hűtőházi területek felhasználásával (a szükséges átalakítások mellett) került kialakításra.
www.vbmp26kft.hu
|
|
 |
| -----------------------------------------------------------------------------------------------
|
|
Nagy Hús Kft. – Csurgó – 2005.
500 félsertés/nap és kapacitású daraboló üzem, ahol 800 félsertés befogadását biztosító tárolóhűtő is kiépítésre került.
Szalagos csontozó rendszer a szükséges darabolt húsok csomagolóval, hűtött és fagyasztott tárolókkal. Az EU előírásaihoz igazodva. (Sajnos nem épült meg.) |
|
 |
| -----------------------------------------------------------------------------------------------
|
|
Nagyhegyes-Hús Kft. -Nagyhegyes- 2005.
100 félsertés/nap és 20 marhanegyed/nap kapacitású daraboló üzem.
Meglévő kisüzemi sertésvágó lett átalakítva (a szükséges kiegészítésekkel) daraboló üzemmé, ahol az alapanyag tárolás mellett a darabolt húsok csomagolása, hűtött és fagyasztott tárolása is biztosított az EU előírásoknak megfelelően. |
|
 |
| ----------------------------------------------------------------------------------------------
|
|
Kanizsa Hús 2000 Kft. Nagykanizsa 2004.
200 félsertés/nap kapacitású daraboló és kereskedelmi elosztó üzem.
Félsertés daraboló a szükséges csomagolókkal, hűtőkkel és fagyasztókkal.
A kereskedelmi tevékenységhez kapcsolódó tároló és kiadó lehetőségekkel.
www.kanizsahus2000.hu
|
|
 |
| -----------------------------------------------------------------------------------------------
|
|
Her-Csi-Hús Kft. – Hernád – 2002.
6000 csirke/óra kapacitású daraboló és csomagoló üzemrész.
A meglévő üzemi területek igénybevételével kialakított daraboló üzemrész.
Az automatikus darabolót (Stork) kiszolgáló többszintes görgős és szállítószalagos anyagmozgatással és többféle csomagolási lehetőséggel.
www.hercsihus.hu
|
|
 |
| -----------------------------------------------------------------------------------------------
|
|
Rózsavölgyi Kft. – Budapest – 2000.
600 félsertés/műszak és 100 marha-negyed/műszak kapacitású daraboló és csontozó üzem.
A volt Kispesti Vágóhíd meglévő helyisé-geinek és hűtőinek felhasználásával került kialakításra a két darabolószalagos sertés-vonal és az egy darabolószalagos marha-vonal. Hússzeletelővel, kockázóval, csomagolóval és fagyasztóval együtt. |
|
 |
| -----------------------------------------------------------------------------------------------
|
|
Vasi Húsipari Rt. – Szombathely – 1998.
25 marhanegyed/óra kapacitású függőleges marhacsontozó.
Korszerű, géppel segített, függesztett rendszerben működő marhacsontozó berendezés (Carni Liberator) kiegészítő elemekkel komplett.
Többszintes, görgősorokból összeállított hústovábbító rendszerrel együtt. |
|
 |
| -----------------------------------------------------------------------------------------------
|
|
Vasi Húsipari Rt. – Szombathely – 1998.
600 félsertés/nap kapacitású daraboló, csontozó és csomagoló üzemrész.
Szalagos törzsfelvágó fűrésszel, két daraboló-csontozó szalaggal és összekötő szalaggal komplett. Az üzem meglévő helyiségeinek felhasználásával és átalakításával készült.
Önálló egyedi csomagoló és különálló kartonozó helyiséggel. |
|
 |
| -----------------------------------------------------------------------------------------------
|
|
Délhús Rt.. – Pécs – 1995.
100 félsertés/óra kapacitású durva daraboló.
A csontozó üzemrészhez szükséges elődaraboló, ahol a félsertéseket testtáji darabokra vágják. Szalagos törzsfelvágó fűrésszel, darabolószalaggal és elszállító magaspályával. |
|
 |
| -----------------------------------------------------------------------------------------------
|
|
Smolmjaso AG. – Szmolenszk – 1993.
40 marhanegyed/óra kapacitású függőleges marhacsontozó.
Korszerű, géppel segített, függesztett rendszerben működő marhacsontozó berendezés (Carni Liberator) kiegészítő elemekkel komplett. |
|
 |
| -----------------------------------------------------------------------------------------------
|