| ----------------------------------------------------------------------------------------------- |
|
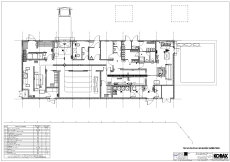
Vágópont húsfeldolgozóval – 2016.
Szarvasmarha és sertés vágására kialakított vágópont darabolóval és kisebb húsfeldolgozó üzemrésszel (jellemzően a daraboláskor keletkező nyesedékek feldolgozására).
Közvetlen kapcsolattal rendelkező húsbolttal együtt.
Sajnos a tervek elkészültekor megszűntették a vágópontot, így bizonytalanná vált a megépítése.
|
|
 |
| ----------------------------------------------------------------------------------------------- |
|
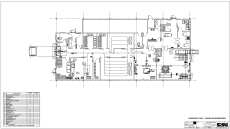
Mangalica vágópont – 2015.
Heti 100 (2*50/nap) sertés (jellemzően mangalica) vágására optimalizált vágópont, kisebb darabolóval kiegészítve.
|
|
 |
| ----------------------------------------------------------------------------------------------- |
|
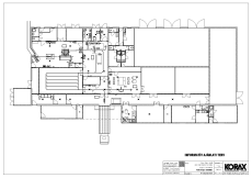
Sertés és marha vágópont – 2015.
Szarvasmarha és sertés vágására, illetve darabolására alkalmas vágópont.
Sajnos nem lett megépítve...
|
|
 |
| ----------------------------------------------------------------------------------------------- |
|
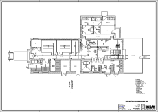
Asociatia Composesorat Boygó
Oroszhegy – 2014.
Szarvasmarha és sertés vágására, illetve darabolására alkalmas kisvágóhíd (vágópont).
Egy kis húsbolttal is kiegészítve a saját frisshús eladáshoz. |
|
 |
| ----------------------------------------------------------------------------------------------- |
|
Vállaji Svábhús Kft. –
Vállaj – 2011.
Sertésvágásra készített vágópont darabolóval együtt.
Az Éltechno Élelmiszeripari Fejlesztő és Kereskedelmi Kft. engedélyezési terve alapján készítettük ezt a kiviteli tervet; kisebb kiigazítások és módosítások mellett. |
|
 |
| ----------------------------------------------------------------------------------------------- |
|
Döbröközi Mg. Zrt. –
Döbrököz – 2011.
Sertésvágásra optimalizált vágópont, forrázó-kopasztó berendezéssel. A vágás mellett daraboló is lett tervezve az üzembe.
(Egyenlőre csak ajánlati stádiumban.) |
|
 |
| ----------------------------------------------------------------------------------------------- |
|
Vass János –
Újfehértó – 2009.
Egyszerű vágópont sertés- és marhavágásra, ahol a vágás egy közös bontóemelős rendszeren történik. A sertésvágásnál kizárólag lelángolással történik a testek szőrtelenítése.
(Sajnos megrekedt az ajánlati szinten.) |
|
 |
| ----------------------------------------------------------------------------------------------- |
|
Vágópont marhavágásra – 2009.
A novemberi nagy vágópont pályázat alkalmával készült ez a vágópont variáció. Jelen esetben jellemzően inkább csak szarvasmarha vágásra optimalizálva, de kisebb kiegészítésekkel (és minimális vágóterület növeléssel) sertések vágására is alkalmassá tehető.
|
|
 |
| ----------------------------------------------------------------------------------------------- |
|
Kőhegyi Kecskefarm – Pomáz – 2009.
Egy nagyobb léptékű beruházás részét képezi ez a vágópont, ami jobbára a Kőhegyi Kecskefarm Kft. saját bio tenyésztésű állatállományának (kecske, juh, sertés és szarvasmarha) a levágására szolgál majd.
A Titton és Társa Építész Kft. felkérésére készítettem ezt a technológiai tervet. |
|
 |
| ----------------------------------------------------------------------------------------------- |
|
Hortobágyi T. G. Kht. – 2009.
Sertés- és marhavágásra készített vágópont, ahol részben párhuzamos vonalakon történik a két állatfaj vágás. A sertésvágásnál kizárólag lelángolással történik a testek szőrtelenítése.
A Debreceni Agrober Kft. felkérésére készítettem ezt a kiviteli tervet egy előzetes engedélyezési terv részleges átdolgozásával. |
|
 |
| ----------------------------------------------------------------------------------------------- |