| ----------------------------------------------------------------------------------------------- |
|
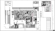
Vágó, feldolgozó tanüzem – 2022.
Meglévő tanüzem átalakítása, hogy a jelenlegi előírásoknak is megfelelő legyen.
Külön lehetőség biztosításával a tanüzembe érkező vendégek elszeparált üzemi látogatására, a munkafolyamatokba való (védett) betekintési lehetőséggel.
Kiskapacitású sertés- és marhavágási lehetőséggel, komplett húsipari feldolgozási technológiával.
|
|
 |
| ----------------------------------------------------------------------------------------------- |
|
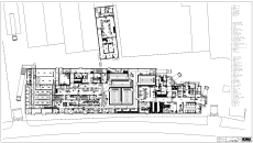
Sertésvágó feldolgozóval – 2021.
200 sertés/nap vágására alkalmas vágó mellett darab 60 félsertés/nap daraboló és 1000 kg/nap (teljes vertikumú – pácolt termékek, szárazáruk, töltelékes készítmények, meleg-üzemi termékek és zsírolvasztás) húsipari termék előállítására alkalmas üzem. |
|
 |
| ----------------------------------------------------------------------------------------------- |
|
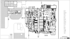
Sertésvágó feldolgozóval – 2021.
Meglévő sertésvágó teljes felújítása, korszerűsítése 420 sertés/nap vágására, teljes béltisztítással. Új daraboló üzemrész kialakítása 50 félsertés/óra kapacitással. 2680 kg/nap (teljes vertikumú – pácolt termékek, szárazáruk, töltelékes készítmények, meleg-üzemi termékek és zsírolvasztás) húsipari termék előállítására alkalmas húsfeldolgozó bővítéssel. |
|
 |
| ----------------------------------------------------------------------------------------------- |
|
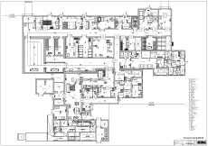
Kiskapacitású vágó-feldolgozó – 2020.
50 sertés/nap vágására alkalmas vágó mellett darab 100 félsertés/nap daraboló és 2000 kg/nap (teljes vertikumú – pácolt termékek, szárazáruk, töltelékes készítmények, meleg-üzemi termékek és zsírolvasztás) húsipari termék előállítására alkalmas üzem. |
|
 |
| ----------------------------------------------------------------------------------------------- |
|
Birkavágóval bővítés – 2019.
Korábbi tervem alapján épített vadfeldolgozó már évek óta működött Romániában. Ehhez készült most egy kiegészítés, ahol napi 125 birka vágására van lehetőség a meglévő funkciók (vadfeldolgozás és húsipari termékek gyártása) megtartása mellett. |
|
 |
| ----------------------------------------------------------------------------------------------- |
|
Kiskapacitású vágó-feldolgozó – 2019.
30 sertés/nap és 1÷2 szarvasmarha/nap vágására alkalmas vágóvonal mellett darab 60 félsertés/nap daraboló és 1500 kg/nap (teljes vertikumú – pácolt termékek, szárazáruk, töltelékes készítmények, meleg-üzemi termékek és zsírolvasztás) húsipari termék előállítására alkalmas üzem. |
|
 |
| ----------------------------------------------------------------------------------------------- |
|
Vágópont átalakítás – 2017.
Vágópont átalakítása kiskapacitású sertésvágóvá (35 sertés/nap).
Kibővítése daraboló és húsfeldolgozó üzemrészekkel. |
|
 |
| ----------------------------------------------------------------------------------------------- |
|
2016.
100 sertés/nap és 5 szavasmarha/nap, kapacitású vágó, 8 nagyvad/nap feldolgozó, és 2 tonna/nap teljesítményű húsfeldolgozó üzem. |
|
 |
| ----------------------------------------------------------------------------------------------- |
|
BMK – Oroszország – 2014.
Kombinált sertés és marhavágó, 14 tonna/nap daraboló és 20 tonna/nap teljesítményű feldolgozó üzem. |
|
 |
| ----------------------------------------------------------------------------------------------- |
|
2011.
50 sertés/nap és 6 szavasmarha/nap kapacitású vágó, 40 félsertés/nap daraboló és 2 tonna/nap teljesítményű feldolgozó üzem, egy saját kis húsbolttal egybeépítve. |
|
 |
| ----------------------------------------------------------------------------------------------- |
|
Süveg-Hús Kft. – Mocsa – 2009.
100 sertés/nap és 10 szarvasmarha/napkapacitású vágó, daraboló és feldolgozó üzemrésszel és egy saját kis húsbolttal egybeépítve.
Egy meglévő kisüzem bővített és korszerűsített kiváltására szolgáló, zöldmezős létesítmény.
|
|
 |
| ----------------------------------------------------------------------------------------------- |
|
Nagykun-Hús Kft. – Kunhegyes – 2008.
200 sertés/nap kapacitású vágó, 200 félsertés/nap daraboló és 9 tonna/nap teljesítményű feldolgozó üzem.
A 2003-ban felújított üzemi "mag" külső szalonna feldolgozóval, zsírolvasztóval, emeleti pácolóval és érlelőkkel bővült.
www.nagykunhus.hu
|
|
 |
| ----------------------------------------------------------------------------------------------- |
|
Toro-Impex SRL. – Lemhény – 2008.
200 sertés/nap és 40 marha/nap kapacitású vágóval, 120 félsertés/nap és 40 marhanegyed/nap darabolóval,
2,5 tonna/nap teljesítményű feldolgozóval egybeépített üzem.
Önálló 60 bélgarnitúra/óra teljesítményű komplett béltisztítóval.
A 2005-ben épített vágóhídi rész mellett lévő régi feldolgozó teljes felújításra került, illetve egy béltisztító üzemrésszel is ki lett egészítve. |
|
 |
| ----------------------------------------------------------------------------------------------- |
|
Primacom SRL. – Marosvásárhely – 2006.
200 sertés/nap és 10 marha/nap kapacitású vágóval, 200 félsertés/nap és 20 marhanegyed/nap darabolóval,
8 tonna/nap teljesítményű feldolgozóval egybeépített üzem.
Az 1994-ben épített üzeme az EU-s felzárkóztatás miatt alapos korszerűsítésen esett át. Többek között konvejorizált vágóvonalak, szalagos csontozó és új élőállat átvevő is kialakításra került.
www.petry.ro
|
|
 |
| ----------------------------------------------------------------------------------------------- |
|
Toro-Impex SRL. – Lemhény – 2005.
200 sertés/nap és 40 marha/nap kapacitású vágóval, 100 félsertés/nap és 20 marhanegyed/nap darabolóval,
2,5 tonna/nap teljesítményű feldolgozóval egybeépített üzem.
Meglévő kisüzemi vágó-feldolgozó mellé teljesen újl épületrészbe került a korszerű konvejorizált sertés és marhavágó vonal. A feldolgozó ebben az ütemben változatlanul maradt. |
|
 |
| ----------------------------------------------------------------------------------------------- |
|
Szoboszló-Hús Kft. - Hajdúhadház - 2005.
100 sertés/nap kapacitású vágó, üzemi daraboló és 600 kg/nap teljesítményű feldolgozó üzem.
A meglévő sertésvágó korszerűsítése konvejoros vágóvonallá, 200 kg/nap kapacitású zsírolvasztó és 400 kg/nap kapacitású füstölt kolbász előállító üzemrész kialakítása, az EU-s előírásokhoz igazodva. |
|
 |
| ----------------------------------------------------------------------------------------------- |
|
Nagykun-Hús Kft. – Kunhegyes – 2003.
200 sertés/nap kapacitású vágó, 200 félsertés/nap daraboló és 9 tonna/nap teljesítményű feldolgozó üzem.
A meglévő üzem lett átalakítva korszerű sertésvágóval, darabolóval és feldolgozóval ellátott vágó-daraboló-feldolgozó üzemmé, már az EU-s feltételek teljesítésére.
www.nagykunhus.hu
|
|
 |
| ----------------------------------------------------------------------------------------------- |
|
Szigetvári-Hús Kft. – Szigetvár – 2003.
100 sertés/hét kapacitású vágó és 2000 kg/hét teljesítményű feldolgozó "jóváhagyott létesítmény".
A meglévő "telepi" vágó került átalakításra és bővítésre (a feldolgozó rész teljes egészében új épületrészbe került).
A vágás mellett lényegében a teljes szokásos hideg- és melegüzemi termékek gyártására alkalmas.
|
|
 |
| ----------------------------------------------------------------------------------------------- |
>
|
Húsipari Kft. – Majs – 2003.
100 sertés/hét kapacitású vágó, 100 félsertés/hét daraboló és 750 kg/hét teljesítményű feldolgozó "jóváhagyott létesítmény".
A vágás mellett kizárólag sütnivaló kolbász és olvasztott zsír előállítására. Jellemzően a saját húsboltok ellátására.
(Sajnos végül nem került megépítésre.)
|
|
 |
| ----------------------------------------------------------------------------------------------- |
|
Apró Hús Kft. – Bóly – 2003.
150 sertés/nap kapacitású vágó, 80 félsertés/nap daraboló és 10 tonna/nap teljesítményű feldolgozó üzem.
Egy meglévő kiskapacitású üzem lett átalakítva korszerű sertésvágóval, darabolóval és feldolgozóval ellátott vágó-daraboló-feldolgozó üzemmé, már az EU-s feltételek teljesítésére.
|
|
 |
| ----------------------------------------------------------------------------------------------- |
|
Agro-Produkt Kft. – Pásztó – 2003.
100 sertés/nap kapacitású vágó, 80 félsertés/nap daraboló és 3 tonna/nap teljesítményű feldolgozó üzem.
Egy meglévő kiskapacitású üzem lett átalakítva korszerű sertésvágóval és feldolgozó üzemmel ellátott vágó-daraboló-feldolgozó üzemmé, már az EU-s feltételek teljesítésére. (A sertésvágó teljes egészében új épületrészbe került.)
|
|
 |
| ----------------------------------------------------------------------------------------------- |
|
Felsál Kft. – Várpalota – 1999.
120 sertés/nap, 10 marha/nap vágó és 10 tonna/nap feldolgozó kapacitású üzem.
Korszerű vágóvonalakkal és feldolgozó üzemmel ellátott vágó-feldolgozó üzem, már az EU-s feltételek teljesítésére.
(Sajnos ez az üzem nem lett megépítve.)
|
|
 |
| ----------------------------------------------------------------------------------------------- |
|
Pikker Kft. – Mohács – 1996.
50 sertés/nap és 5 marha/nap kapacitású vágóval és 500 kg/nap teljesítményű feldolgozóval egybeépített üzem.
Egy telepi sertésvágó bővítésével és átalakításával létrehozott "Nemzeti Listás" üzem.
A vágás teljes folyamatában függesztve történik, kézi mozgatású magaspályákon.
Kisüzemi feldolgozó résszel, főleg parasztkolbász gyártásra optimalizálva. |
|
 |
| ----------------------------------------------------------------------------------------------- |
|
Primacom SRL. – Marosvásárhely – 1994.
100 sertés/nap és 10 marha/nap kapacitású vágóval és 3 tonna/nap teljesítményű feldolgozóval egybeépített üzem.
A vágás teljes folyamatában függesztve történik, kézi mozgatású magaspályákon.
Komplett feldolgozó üzemrésszel, a helyben szokásos termékek gyártására is alkalmas korszerű üzem.
www.petry.ro
|
|
 |
| ----------------------------------------------------------------------------------------------- |
|
Konfár János – Jakabszállás – 1994.
50 sertés/nap és 5 marha/nap kapacitású vágóval és 1000 kg/nap teljesítményű feldolgozóval egybeépített kisüzem.
A vágás teljes folyamatában függesztve történik, kézi mozgatású magaspályákon.
A feldolgozó üzemrészben a hazai gyakorlat szerinti kisüzemi termékskála állítható elő. |
|
 |
| ----------------------------------------------------------------------------------------------- |