| ----------------------------------------------------------------------------------------------- |
|
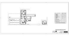
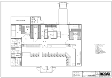
Termékszeletelő és csomagoló – 2022.
2 tonna/nap kapacitású húsipari termékeket szeletelő és csomagoló üzem, ami egy meglévő épületben lett kialakítva.
A szeletelt és egyedileg becsomagolt kartonos gyűjtőcsomagolásban lehet kiszállítani.
|
|
 |
| ----------------------------------------------------------------------------------------------- |
|
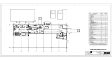
HALAL birkavágó – 2019.
100 birka/nap kapacitású birkavágó, ami a HALAL előírási szerint működik.
Opcionálisan lehetőség van borjak vágására is az üzemben.
A levágott és lehűtött állattesteket egészben szállítják ki az üzemből, további feldolgozásra, illetve eladásra.
|
|
 |
| ----------------------------------------------------------------------------------------------- |
|
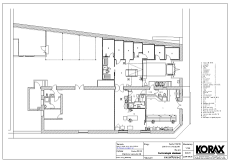
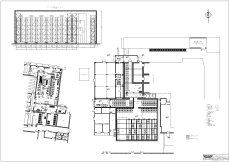
CBA háttérüzem – 2019.
Húsfeldolgozó háttérüzem
Kiskereskedelmi létesítményhez (CBA áruház) kapcsolódó húsfeldolgozó háttérüzem a 64/2007. (VII. 23.) FVM-EüM együttes rendelet 4. §-nak megfelelően; ahol darabolt hús, pácolt és füstölt termékeket, parasztkolbászt, hőkezelt kolbászokat és szalonnaféléket lehet készíteni.
|
|
 |
| ----------------------------------------------------------------------------------------------- |
|
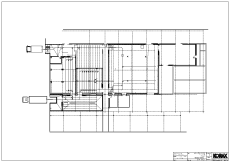
Húsbolt – 2017.
Darabolt vörös- és baromfihúsok, hentesipari húskészítmények és fagyasztott termékek, illetve tejtermékek árusítására.
Önálló büfével.
|
|
 |
| ----------------------------------------------------------------------------------------------- |
|
Orosz Nikoletta – Parasznya – 2013.
Húsbolt
Helyi igények kielégítését biztosító húsbolt, ami a jövőben várhatóan kiegészül majd egy kiskereskedelmi létesítményhez kapcsolódó feldolgozó üzemrésszel is. |
|
 |
| ----------------------------------------------------------------------------------------------- |
|
Rubók Kft. – Budapest – 2011.
Húsfeldolgozó háttérüzem
Kiskereskedelmi létesítményhez (CBA áruház) kapcsolódó húsfeldolgozó háttérüzem a 64/2007. (VII. 23.) FVM-EüM együttes rendelet 4. §-nak megfelelően; ahol pácolt és füstölt termékeket, parasztkolbászt és szalonnaféléket lehet készíteni. |
|
 |
| ----------------------------------------------------------------------------------------------- |
|
Kőhegyi Kecskefarm Kft. – Pomáz – 2009.
Húsbolt-feldolgozóval
Egy nagyobb léptékű beruházás részét képezi ez a kis mintabolt a hozzá kapcsolódó feldolgozóval, ahol kizárólag a Kőhegyi Kecskefarm Kft. saját bio tenyésztésű állatainak a húsát, sajtokat és házias jellegű húskészítményeket kívánnak forgalmazni, illetve előállítani.
A Titton és Társa Építész Kft. felkérésére készítettem ezt a technológiai tervet. |
|
 |
| ----------------------------------------------------------------------------------------------- |
|
Kontur '89 Kft. – Üröm – 2009.
Húsbolt-feldolgozóval
Egy más funkciójú épület kerül átalakításra Üröm központi részén egy húsbolttá, amihez egy kis feldolgozó üzemrész is kapcsolódik.
A megrendelő speciális helyi ízesítésű termékek forgalmazását és előállítását tűzte ki célul.
A tervet szoros együttműködésben készítettem Simon Sándorral. |
|
 |
| ----------------------------------------------------------------------------------------------- |
|
Tauris AS. – Rimaszombat – 2006.
Daraboló üzem kiszolgálását (ki- és beszállításokat) biztosító hűtőtárolók, átvevő és kiadó helyek magaspályával való felszerelése.
A szükséges pályarendszeren kívül
a különböző szintkülönbségek áthidalását biztosító pályaközi emelőkkel és a kamionrakodáshoz szükséges csatlakozá-sokkal. |
|
 |
| ----------------------------------------------------------------------------------------------- |
|
Lac-Hús Kft. – Hajdúnánás – 2003.
Húsbolt, a szomszédos ingatlanon üzemeltetett vágóhíd termékeinek kiskereskedelmi eladására.
A vágóhíd bővítésének "áldozatul" esett régi húsboltot helyettesíti sokkal korszerűbb és tágasabb kivitelben.
A könnyűszerkezetes épületet a NÁNA Építész Stúdió Bt. tervezte. |
|
 |
| ----------------------------------------------------------------------------------------------- |
|
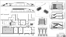
Vasi-Hús Kft. – Szombathely – 2002.
17 tonna/nap kapacitású fagyasztó és 440 tonna fagyos tároló.
Az üzem meglévő helyiségeinek átalakításá-val került kialakításra ez a hűtőház jellegű megoldás az üzem fagyasztási és fagyos tárolási igényeinek megoldására.
A fagyasztás rakoncás rendszerű. A fagyos tárolás zömmel mozgatható állványrendsze-ren
(SSI Schäfer) biztosított.
A Titton és Társa Építésziroda megbízásából készített technológiai terv. |
|
 |
| ----------------------------------------------------------------------------------------------- |
|
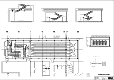
Zalabaromfi Rt. – Zalaegerszeg – 2001.
4000 pulyka/nap kapacitású testhűtő.
A tetőn került kialakításra a kétpályás konvejorral működtetett pulykatest hűtő, ahová a testeket egy önálló felhordó konvejor juttatja fel a bontóból, majd egy másik le a darabolóba.
A hűtés hatásfokát javító vízporlasztó rendszerrel.
12 helyes függesztőhorgokkal és integrált horogmosó berendezéssel. |
|
 |
| ----------------------------------------------------------------------------------------------- |
|
Integrál ÁFÉSZ –Kiskunfélegyháza– 2001.
4600 darabos folyamatos működésű testhűtő, hízott liba és/vagy kacsatestek hűtésére.
A hűtőben futó több hajtóműves, négyszin-tes hűtőkonvejor, egyenkénti függesztéssel.
A hűtés hatásfokát javító vízporlasztó rendszerrel.
A Huurre Frigo Kft. megbízásából készült terv, ami sajnos nem lett megvalósítva. |
|
 |
| ----------------------------------------------------------------------------------------------- |
|
Sárvári Baromfiipari Rt. – 1996.
8000 pulyka/nap kapacitású testhűtő.
A meglévő egypályás pulykahűtő kibővítésével kialakított pulykatest hűtő.
Kétpályás konvejorral, négy hajtással és a közéjük telepített átadó berendezésekkel együtt.
A hűtés hatásfokát javító vízporlasztó rendszerrel.
16 helyes függesztőhorgokkal és integrált horogmosó berendezéssel. |
|
 |
| ----------------------------------------------------------------------------------------------- |